Manufactured in Canada | 20 Year Warranty | Green & Energy Efficient

Country Pointe and Offset Floorplans

Country Pointe & Offset Features

  • ^Lifetime warranty on shingles with full underlayment
  • ^Stippled gyproc ceiling
  • ^Floor joists: 2 x 10 @ 16” o/c
  • ^Gas furnace, electric 50 Gal HWT
  • ^Digitable programmable thermostat
  • ^Low E Argon windows & sills with screens
  • ^Stainless steel 18 cubic foot fridge
  • ^Single row subway tile backsplash
  • ^Custom cabinet design with crown moulding
  • ^Ceramic cooktop with SS range hood
  • ^Fridge. stove, dishwasher and microwave included

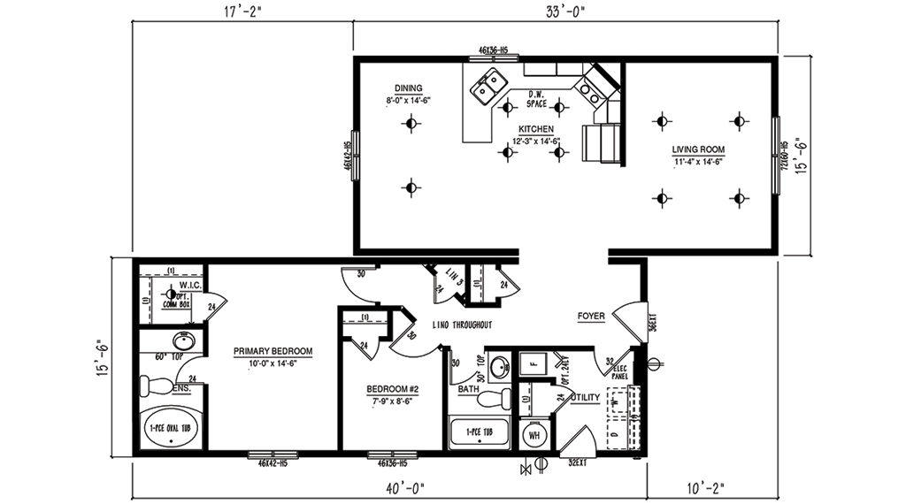
Country Pointe Floorplans

3 Bed

2 Bath

1460 SQFT

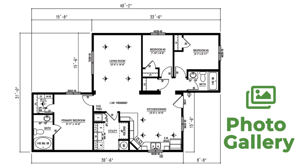
3 Bed

2 Bath

1460 SQFT

3 Bed

2.5 Bath

1474 SQFT

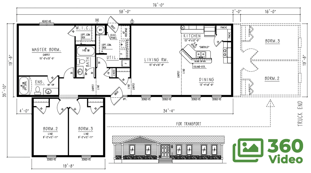
3 Bed

2 Bath

1475 SQFT

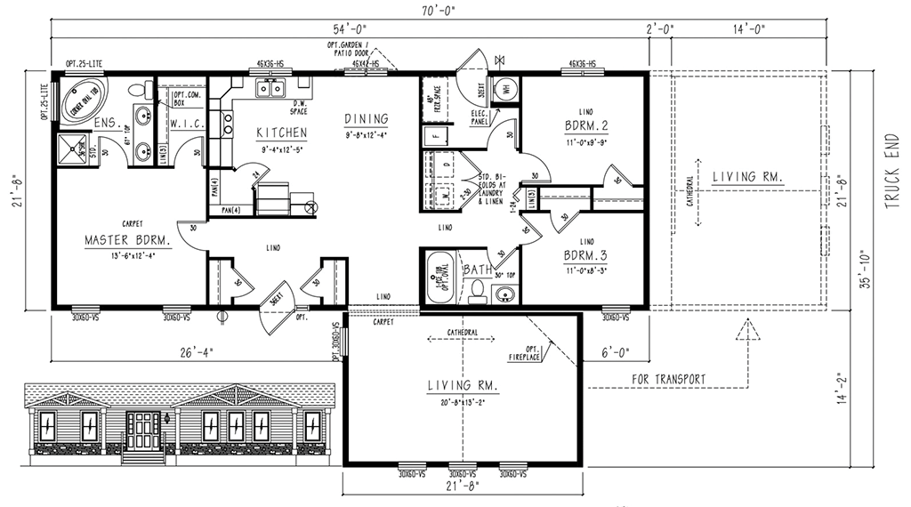
3 Bed

2 Bath

1656 SQFT

Offset Style Sectional Homes

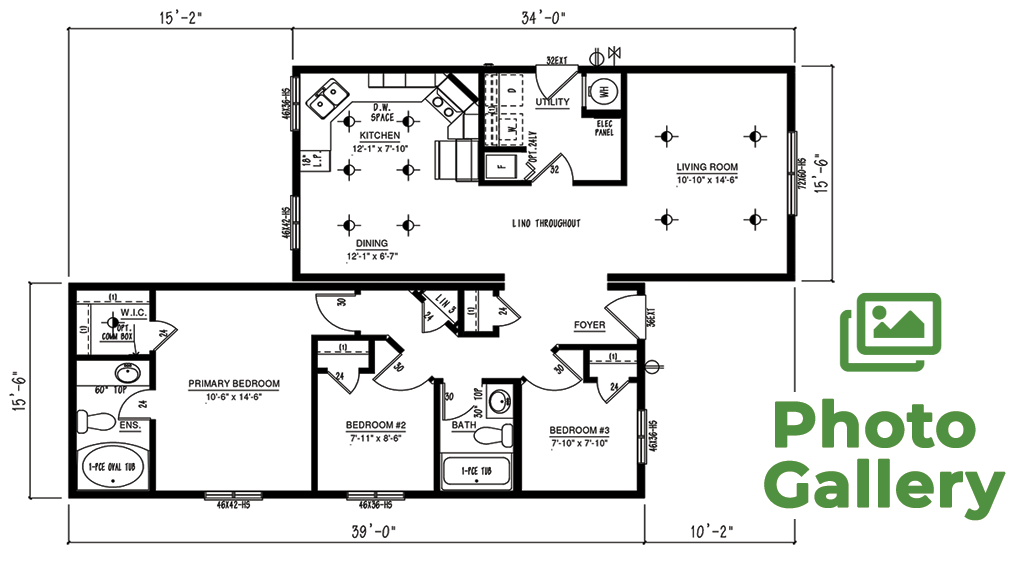
3 Bed

2 Bath

1168 SQFT

2 Bed

2 Bath

1168 SQFT

3 Bed

2 Bath

1168 SQFT