Manufactured in Canada | 20 Year Warranty | Green & Energy Efficient

Floorplans - 24 & 27 Wide Modular Homes

24 Wide 2 Piece Sectional Homes

Our selection of 24 Wide 2 piece modular homes are top of the line in energy efficiency and full of modern features and amenities.  When you tour these show homes you can see the attention to detail that has been included in the design. These homes are delivered in two pieces and assembled on site.  They can be placed on a concrete or engineered pile foundation.

  • ^Lifetime warranty on shingles with full underlayment
  • ^Stippled gyproc ceiling
  • ^Floor joists: 2 x 8 @ 16” o/c
  • ^Some plans with vaulted ceiling in living/dining/kitchen area
  • ^Gas furnace, electric 50 Gal HWT
  • ^Low E Argon windows & sills with screens
  • ^Stainless steel 18 cubic foot fridge
  • ^Single row subway tile backsplash
  • ^Custom cabinet design with crown moulding
  • ^Ceramic cooktop with SS range hood
  • ^Fridge. stove, dishwasher and microwave included

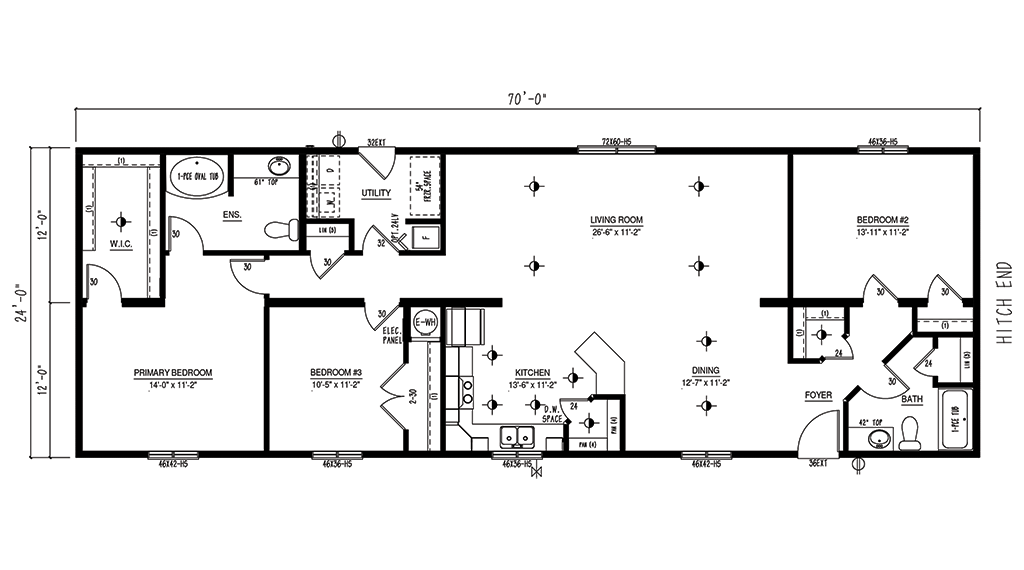
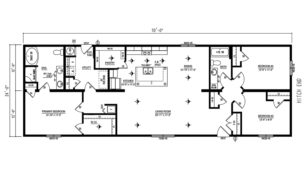
24 Wide Sectional Homes

3 Bed

2 Bath

1200 SQFT

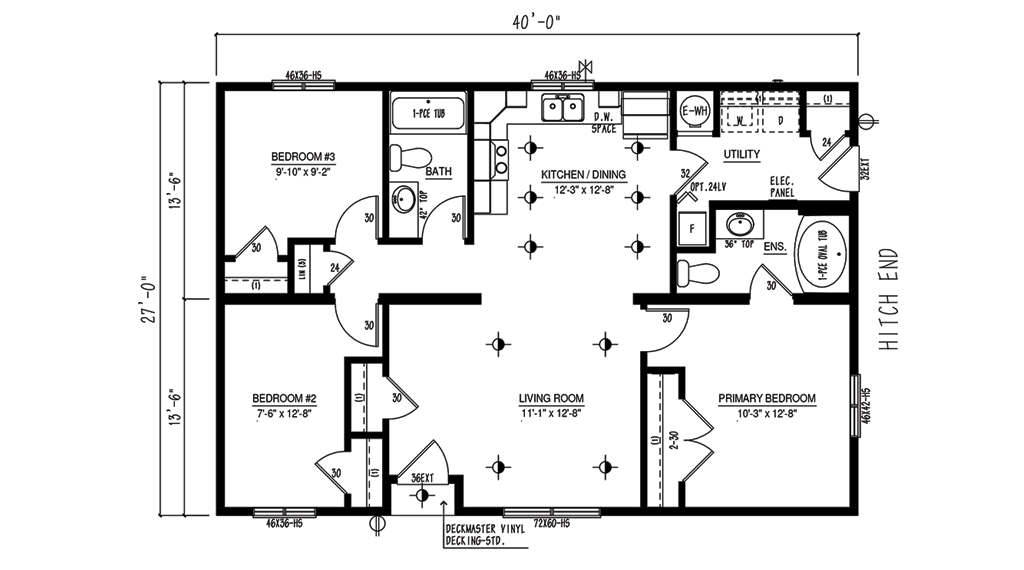
3 Bed

2 Bath

1248 SQFT

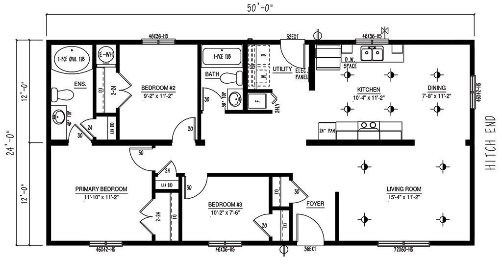
2 Bed

2 Bath

1344 SQFT

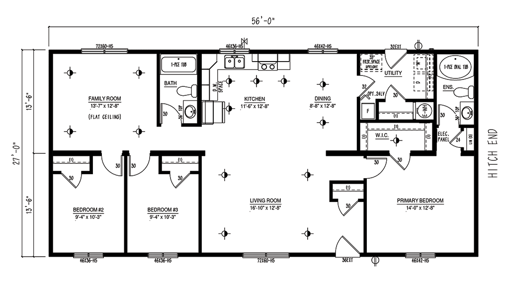
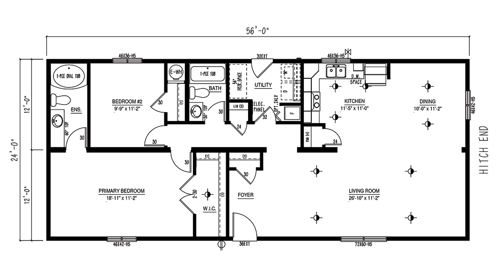
3 Bed

2 Bath

1680 SQFT

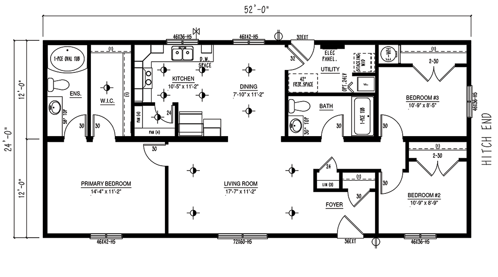
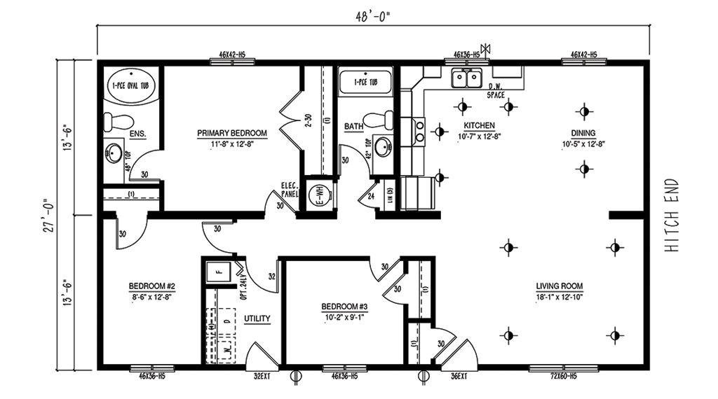
3 Bed

2 Bath

1680 SQFT

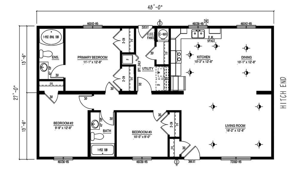
3 Bed

2.5 Bath

1680 SQFT

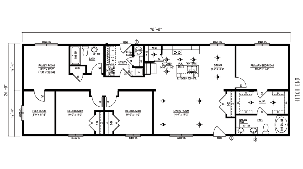
3 Bed

2 Bath

1680 SQFT

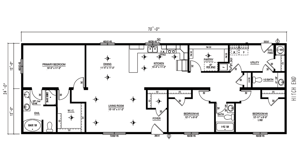
3 Bed

2 Bath

1680 SQFT

3 Bed

2 Bath

1680 SQFT

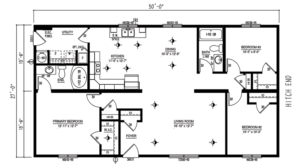
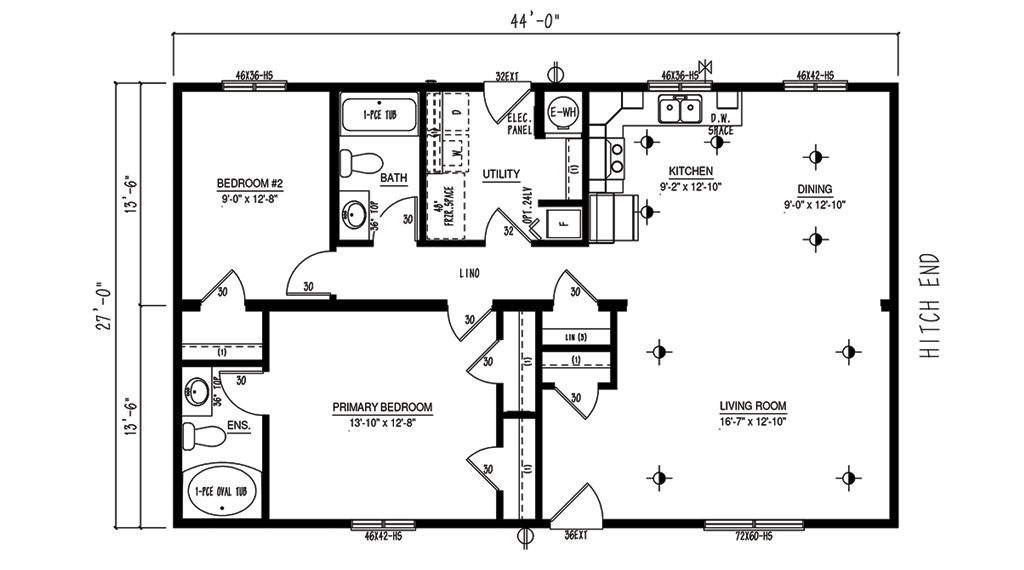
27 Wide Sectional Homes

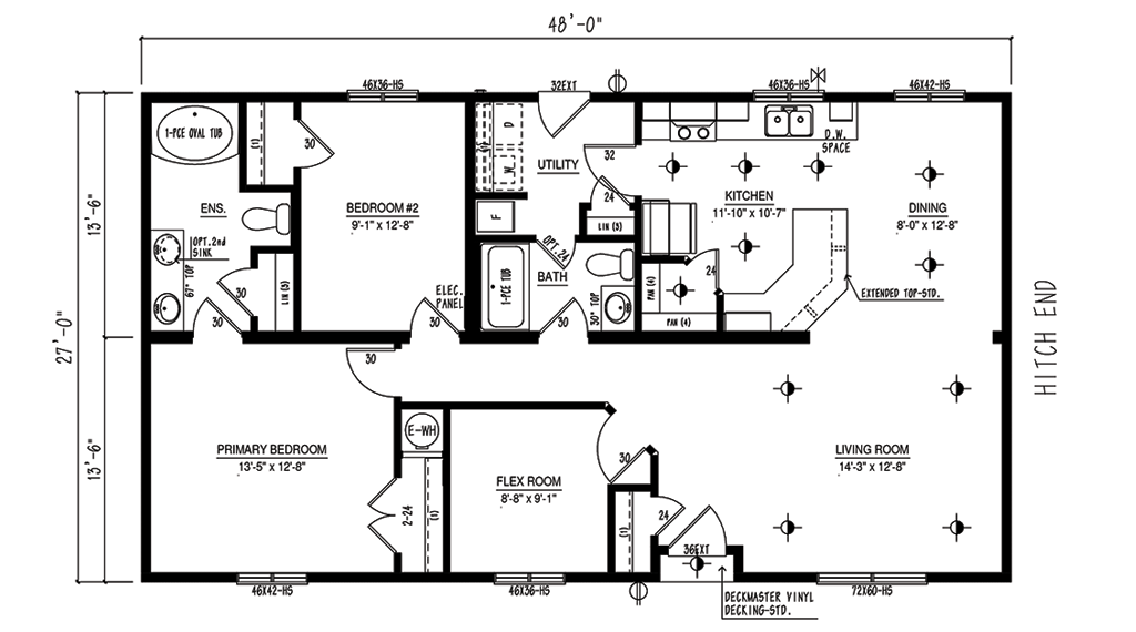
3 Bed

2 Bath

1080 SQFT

2 Bed

2 Bath

1188 SQFT

3 Bed

2 Bath

1296 SQFT

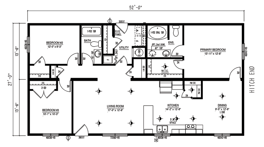
3 Bed

2 Bath

1296 SQFT

3 Bed

2 Bath

1296 SQFT

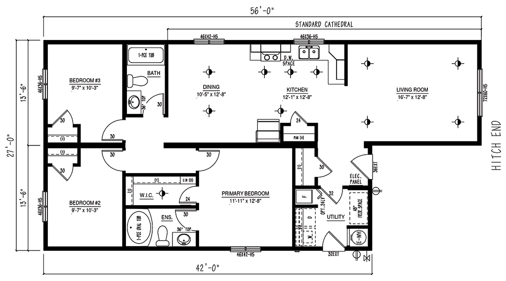
3 Bed

2 Bath

1350 SQFT

3 Bed

2 Bath

1404 SQFT

3 Bed

2 Bath

1323 SQFT

3 Bed

2 Bath

1512 SQFT