Manufactured in Canada | 20 Year Warranty | Green & Energy Efficient

Office & Workforce Modular Spaces

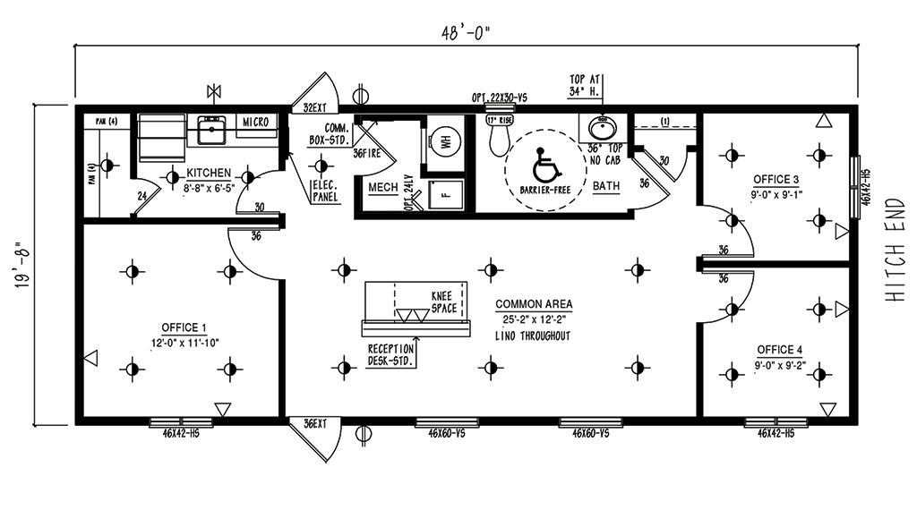
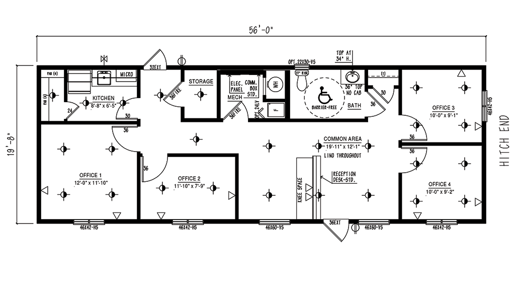
Meridian Office Series

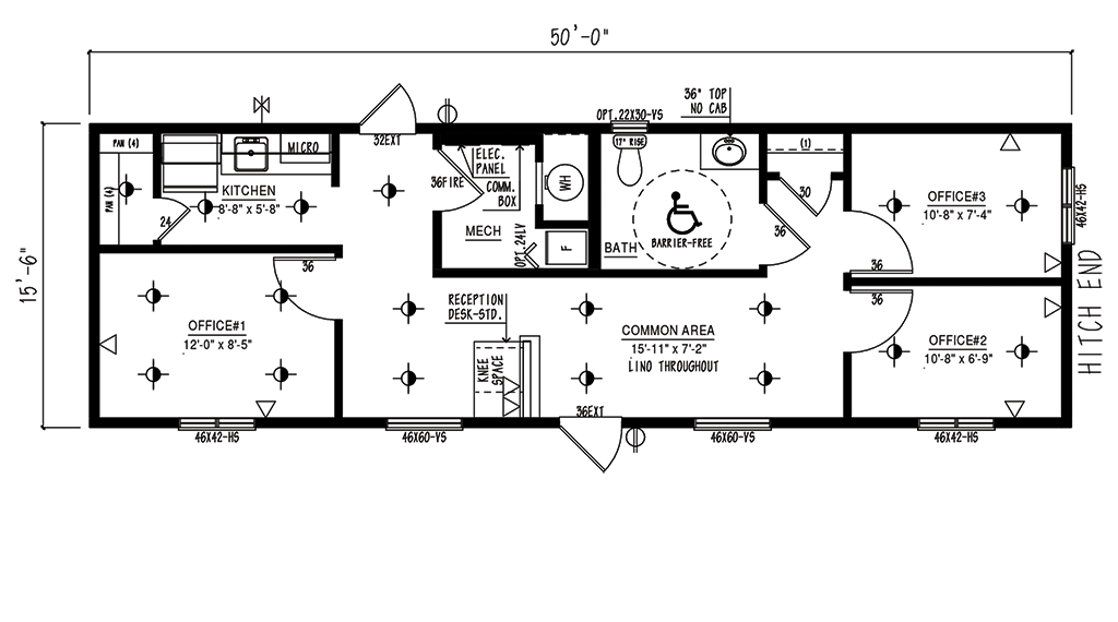
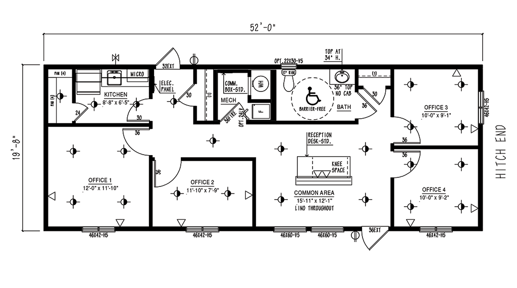
We build modular offices starting at 800 square feet and ranging up to 1400 square feet that are designed to fit your business needs. Whether you need a temporary solution or a permanent workspace our modular unit is your best option. Our floor plans are customizable and include barrier-free options for accessibility. Choose from our pre-drafted mobile office designs or let us design a custom layout with all the networking, storage, and comfort features your business requires. Our portable office solutions are efficient, spacious and ready to meet the unique demands of your business.

  • ^Customizable designs with flexible layouts and finishes
  • ^Assembled quickly on site
  • ^Scalable and able to expand or modify as your needs grow
  • ^Energy efficient
  • ^Sustainbale and eco-friendly materials and options
  • ^Fridge. sink and microwave included

Modular Office Floorplans

3 Bed

1 Bath

800 SQFT

3 Bed

1 Bath

960 SQFT

4 Bed

1 Bath

1040 SQFT

4 Bed

1 Bath

1120 SQFT

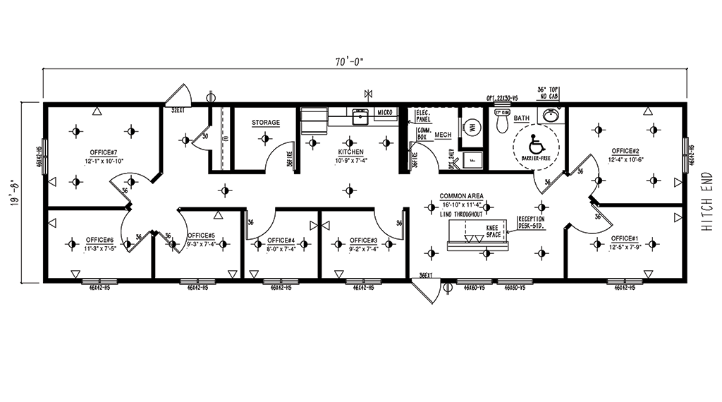
7 Bed

1 Bath

1400 SQFT

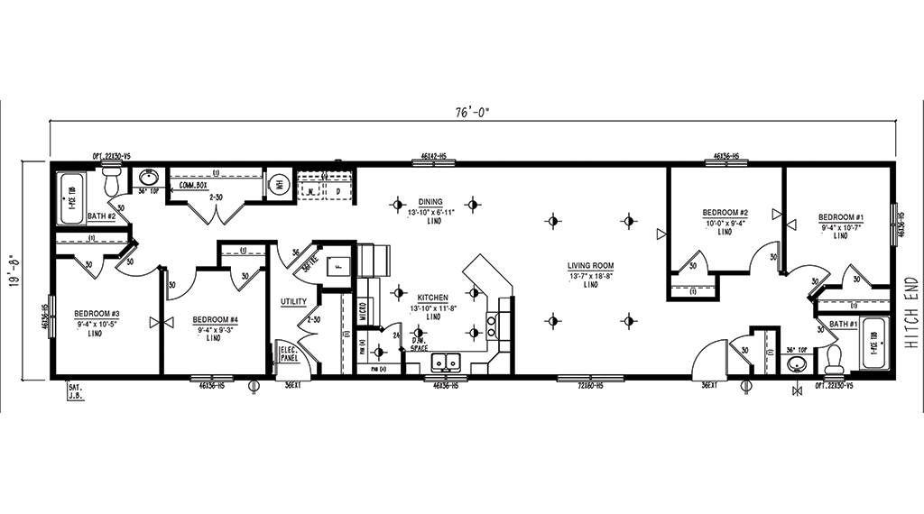
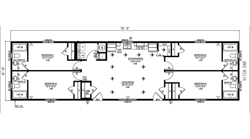
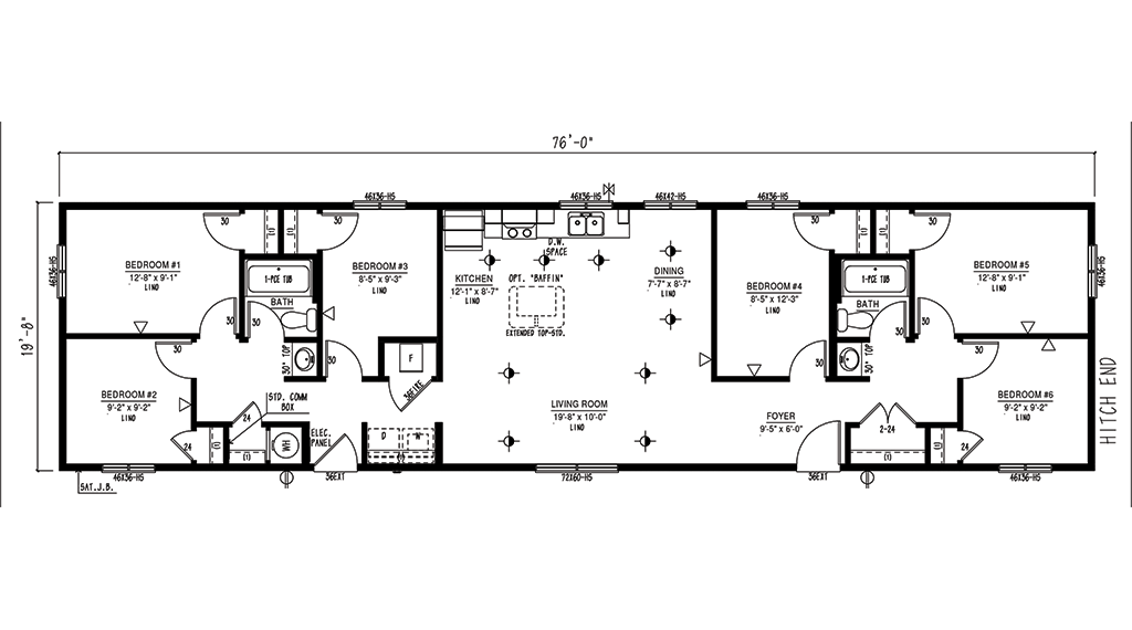
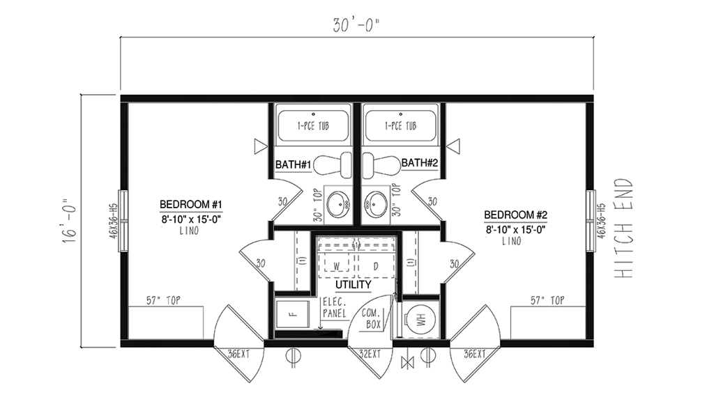
Portable Work Accommodations

Comfort meets convenience with our portable modular workforce housing.  For companies doing business in remote locations effective employee retention starts with providing comfortable and flexible housing solutions. Available in 2 to 6 bedroom units our portable housing units are ideal for temporary lodging and work camp situations common to industries like oil and gas, agriculture, construction and mining.  Providing thoughtfully designed and flexible home away from home solutions for your workforce.

  • ^Customizable designs with flexible layouts and finishes
  • ^Transportable units can be assembled quickly on site
  • ^Scalable and able to expand or modify as your needs grow
  • ^Modern amenities include fully equipped kitchens and bathrooms
  • ^Sustainbale and eco-friendly materials and options
  • ^Available for both temporary and permanent foundations

2 Bed

2 Bath

480 SQFT

4 Bed

2 Bath

1520 SQFT

4 Bed

4 Bath

1520 SQFT

6 Bed

2 Bath

1520 SQFT