Manufactured in Canada | 20 Year Warranty | Green & Energy Efficient

Floorplans - 20 Wide Kitchen Special

20 Wide Kitchen Special Modular Homes

Our Kitchen Special floor plans are top of the line and feature rich with everything you could want in a modern and energy efficient home.  The kitchen amenities like walk in pantry/butler cupboards, garden doors and entended islands with seating means your new home is functional enough to handle any family gathering.

  • ^Residential, maintenance-free vinyl siding
  • ^Stippled gyproc ceiling
  • ^Floor joists: 2 x 10 @ 24” o/c
  • ^Engineered wood web floor truss system 22' & 24'
  • ^Some plans with vaulted ceiling in living/dining/kitchen area
  • ^Gas furnace, electric 50 Gal HWT
  • ^Low E PVC windows & sills with screens
  • ^Stainless steel french fridge with internal water
  • ^Optional built in microwave in island
  • ^Full tile backsplash w/ decor insert
  • ^Custom cabinet design with crown moulding
  • ^Ceramic cooktop with pyramid range hood
  • ^Fridge. stove, dishwasher and microwave included

20 Wide with Deluxe Kitchens

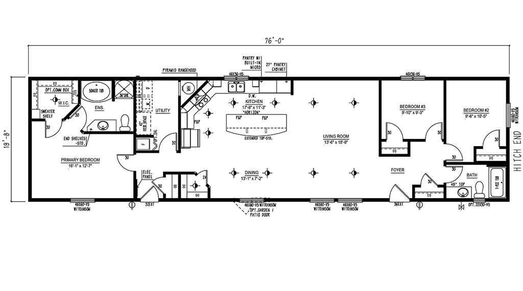
3 Bed

2 Bath

1360 SQFT

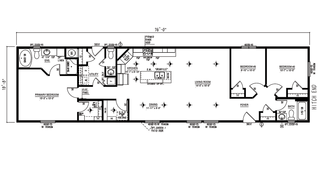
3 Bed

2 Bath

1520 SQFT

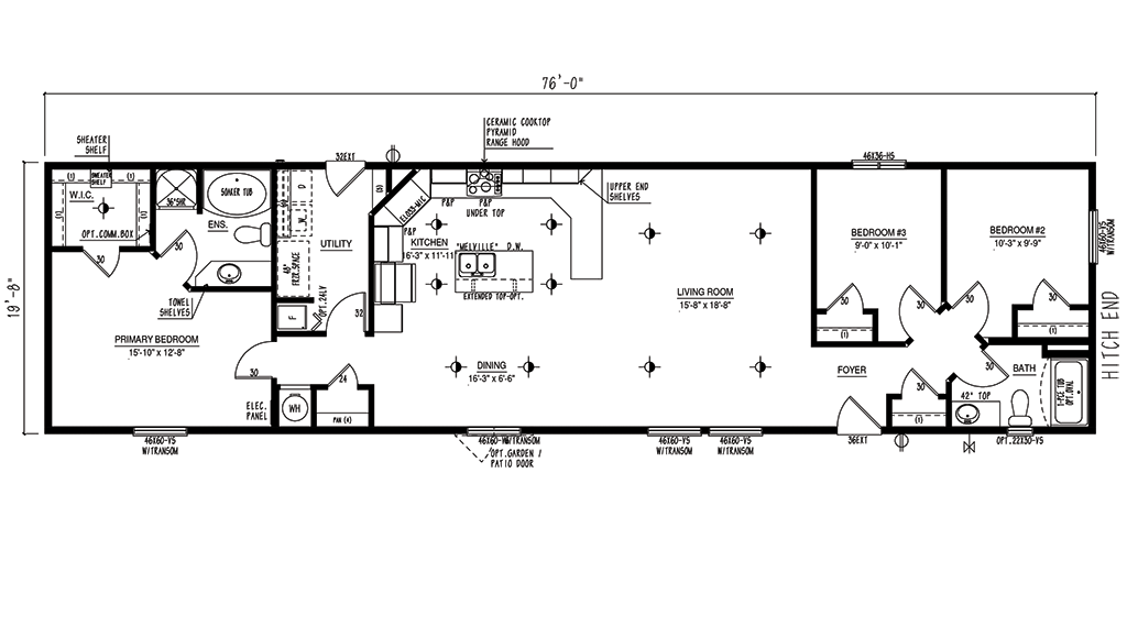
3 Bed

2 Bath

1520 SQFT

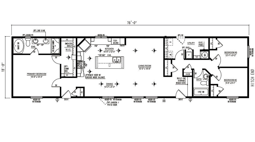
3 Bed

2 Bath

1520 SQFT

3 Bed

2 Bath

1520 SQFT

3 Bed

2.5 Bath

1520 SQFT

3 Bed

2 Bath

1520 SQFT

3 Bed

2 Bath

1520 SQFT

3 Bed

2 Bath

1520 SQFT