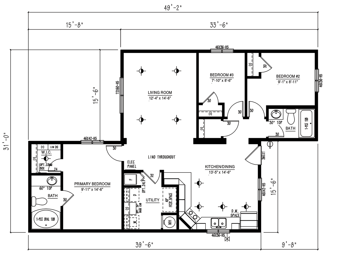
- The two piece offset modular home is shipped in two sections and put together on site
- Combined kitchen and dining area with L-shaped kitchen and optional glass door display cabinets
- Main entry into Kitchen dining area has closet close by.
- Utility/laundry room off kitchen has space for freezer and side by side washer/dryer and one base cabinet.
- Living room has large transom picture window
- Master bedroom has walk in closet and ensuite with oval 1 piece tub and shower
OST1676-414
Size: 16 Wide
31'" x 49'2"
3 Bed
2 Bath
1168 SQFT
Interested in this FLOOR PLAN? Complete the email form and send us your request and we will get back to you.
